Maintien vis-à-vis du déversement d’une solive en acier par un goujon soudé
Une solive en acier non mixte, supportant une dalle mixte ou une dalle pleine en béton, peut être exposée au risque de déversement. L’ajout d’un nombre réduit de goujons soudés peut permettre de constituer des maintiens latéraux et d’améliorer la résistance au déversement qu’il conviendra de vérifier entre maintiens consécutifs. Ce document présente les principes de conception de ce dispositif.
Principe du maintien latéral
Une poutre est considérée comme latéralement maintenue vis‑à‑vis de l’instabilité par déversement lorsque, au droit d’une section donnée, son déplacement transversal ainsi que sa rotation autour de l’axe longitudinal sont efficacement empêchés.
Dans certains cas particuliers, ce maintien peut être assuré lorsque la semelle supérieure est en compression continue sur toute la longueur de la poutre (ce qui implique l’absence de moments fléchissants négatifs) et que son déplacement latéral est efficacement empêché.
Un exemple typique est celui d’une solive en acier non mixte supportant une dalle pleine en béton armé ou une dalle mixte acier‑béton. Le maintien latéral ponctuel peut être constitué par un goujon soudé sur la semelle supérieure et ancré dans le béton.
Note 1 : Le maintien n’est pas actif en phase de construction.
Note 2 : Le frottement dalle/semelle et le blocage de la rotation par le contact dalle/semelle contribuent à retarder l’apparition du déversement. Il est toutefois difficile de quantifier ces contributions et de les prendre en compte dans un dimensionnement.
Il est généralement efficace de positionner le maintien latéral au droit de la section où le moment de flexion est maximal, c’est à dire où l’effort tranchant est nul. Dans le cas d’une poutre isostatique soumise à des charges gravitaires, il s’agit de la section située à mi‑portée (voir la Figure 2). Cette localisation peut être légèrement déplacée, si nécessaire, afin que le goujon soit situé en creux d’onde dans le cas d’une dalle avec bac acier disposé perpendiculairement à la poutre.


Dimensionnement d’un maintien par un goujon soudé
Pour le dimensionnement du dispositif local de maintien au déversement de la solive, il est d’usage de considérer une force latérale équivalente à 2 % de l’effort normal dans la semelle comprimée (voir article Métalétech « Conditions de maintien vis-à-vis du déversement d’une poutre » [1]).
La résistance au cisaillement du goujon soudé et ancré dans une dalle pleine, vis‑à‑vis du maintien latéral, est déterminée selon l’Eurocode 4, partie 1‑1, section 6.6.3.1 [2]. Elle correspond à la plus petite des deux valeurs obtenues à partir des expressions suivantes :

Il est à noter que l’équation (1) correspond à un mode de ruine du goujon lui‑même, tandis que l’équation (2) correspond à un mode de ruine du béton environnant.
Où

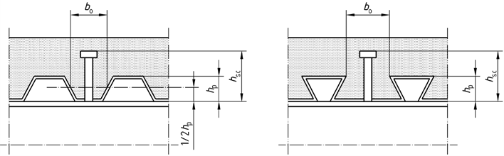
Pour le cas d’une dalle mixte dont les nervures sont orientées perpendiculairement à l’axe de la poutre, la résistance au cisaillement du goujon à tête soudé dans la direction transversale est réduite par un coefficient de réduction k1, conformément à l’Eurocode 4, partie 1‑1, section 6.6.4.1, donné par l’expression suivante :


Références
[1] Bureau, A., Conditions de maintien vis-à-vis du déversement d’une poutre. Fiche Métalétech. Janvier 2021.
[2] NF EN 1994-1-1 : Eurocode 4 – Calcul des structures mixtes acier-béton. Partie 1-1 : Règles générales et règles pour les bâtiments. AFNOR, juin 2005.
Piseth HENG, Chef de projet recherche, CTICM